Котёл КВм-5,4 на угле с ТЛПХ в Саратове

Котел водогрейный КВм-5.4 на угле с топкой ТЛЗМ используется для производства тепловой энергии, за счет нагрева воды до 115 °С. Может функционировать как самостоятельной агрегат или работать в связке с другими котлами в модульных и стационарных котельных. Может использоваться в системах централизованного отопления и горячего водоснабжения в объектах промышленности, ЖКХ и других. Отапливаемая площадь 54000 м².

Цена:
1 580 000 руб.
Количество:
Отправляя свои личные данные через формы на сайте, Вы даёте своё согласие на обработку персональных данных согласно Федеральному закону №152-ФЗ «О персональных данных» от 27.07.2006 г. в редакции от 01.07.2017.

Устройство и принцип работы котла КВм-5.4 на угле с топкой ТЛПХ

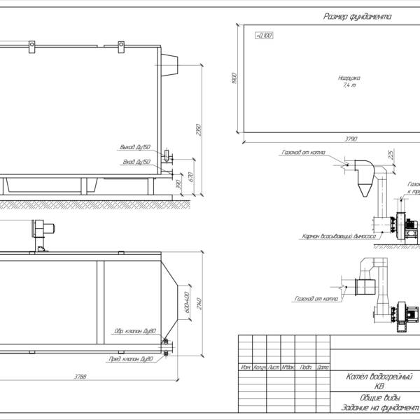
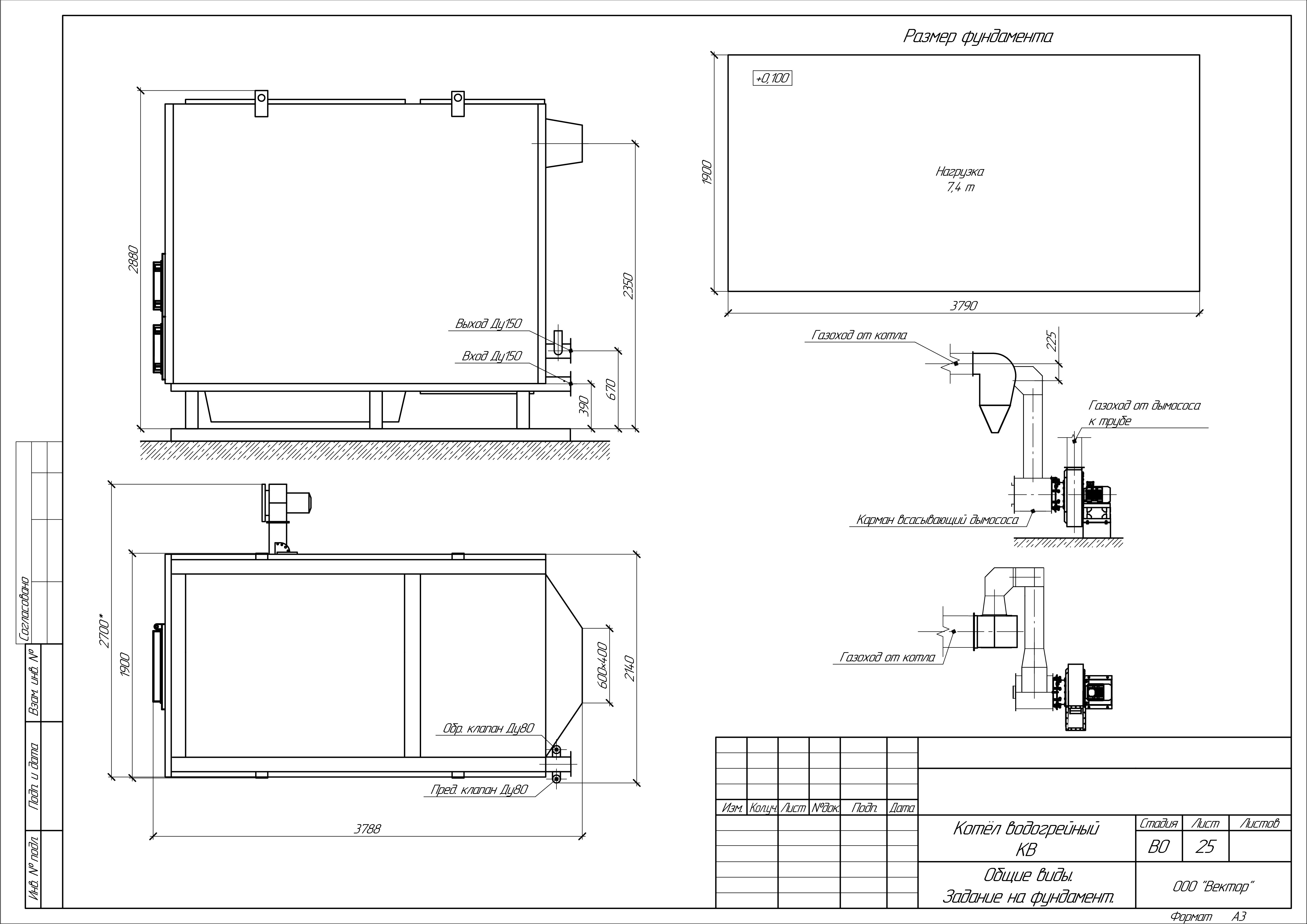
Котел водогрейный КВм-5.4 на угле с топкой ТЛПХ — это два блока (котел и топка), собранный по вертикальному принципу, где топка располагается под котельной установкой. На заводе-изготовителе оба блока собираются в единый металлический корпус, обшиваются теплоизоляционным материалом, и приходят заказчику уже в готовом двублочном виде.

Устройство механической топки ТЛПХ состоит из топливного бункера, рамы с электроприводом, переднего и заднего валов, колосникового ленточного полотна из крайних, ведущих и ведомых чугунных колосников. Движение решетке задает электропривод топки, который состоит из рамы, двигателя и редуктора.

Работа топки начинается с топливоподачи, которая забрасывает топливо в ящик хранения. Из него порционно топливо попадает на колосниковую решетку. Порция топлива дозируется за счет регулировки скорости колосникового полотна. Для стимуляции горения и полноценного расхода топлива в слое предусмотрена тягодутьевая система. Она же частично помогает избавиться от отходов горения сбрасываю шлак и золу в камеру отходов, расположенную под колосниковой решеткой.

Условное обозначение

Котел КВм-5.4 на угле с топкой ТЛПХ, где:

  • К — котел;
  • В — водогрейный;
  • м — механическая топка;
  • 5.4 — мощность топки.
  • Т — топка;
  • Л — ленточная решетка;
  • П — прямого;
  • Х — хода.

Монтаж котла КВм-5.4 на угле с топкой ТЛПХ

Котел водогрейный КВм-5.4 поставляется в комплекте с механической топкой ТЛПХ. В готовом виде конструкция имеет вертикальное строение — топка ТЛПХ устанавливается под водогрейный котел КВм, и собирается в общий металлический корпус с теплоизоляцией. Устройство доставляется в максимальной заводской сборке, готовое к монтажу и пуско-наладочным работам. Установка монтируется на подготовленное выравненное основание и надежно фиксируется при помощи анкерных креплений.

Монтаж и пуско-наладочные работы котельного оборудования производятся специалистами с соблюдением СНиП 11-35-76 «Котельные установки» и «Правил устройства и безопасной эксплуатации паровых и водогрейных котлов».

Характеристики
Тип: КВм
Вид топлива: Каменный уголь$Бурый уголь
Мощность: 4.66 Гкал
Мощность: 5400 кВт
Мощность: 5.4 МВт
КПД, не менее: 82 %
Вид топки: Механическая ТЛПХ
Класс котла: 1
Отапливаемая площадь: 54000 м²
Отапливаемый объём: 145800 м³
Тяга: Принудительная
Температура воды на выходе, не менее: 70...95 °С
Аэродинамическое сопротивление: 210 Па (мм. вод. ст.)
Расход теплоносителя среды: 186 м³/ч
Расход условного топлива: 811 кг/ч
Расход топлива: 1135 кг/ч
Массовый расход уходящих газов: 3.15 кг/с
Низшая теплота сгорания топлива: 5000 кКал/кг
Давление рабочей среды: 0,6 МПа (кгс/cм²)
Гидравлическое сопротивление при перепаде t: 0,08 МПа (кгс/cм²)
Температура воды на входе в котёл, не менее: 60 °C
Температура уходящих газов: 170…250 °C
Радиационная поверхность нагрева: 32.1 м²
Конвективная поверхность нагрева: 109.8 м²
Номинальное разрежение в топке при работе: 20…60 Па
Габаритные размеры (ДxШxВ): 4820х2450х2900 м
Масса котла (без воды): 5700 кг
Расчетный срок службы, не менее: 10 лет

Города поставок

Москва
Пн-Пт 09:00 - 18:00
Сб 09:00 - 17:00
Карачаево-Черкесская Республика
Пн-Пт 09:00 - 18:00
Сб 09:00 - 17:00
Екатеринбург
Пн-Пт 09:00 - 18:00
Сб 09:00 - 17:00

Совершите покупку за 4 шага

Шаг 1
Выберите товары из каталога
Шаг 2
Поместите нужные вам товары в корзины
Шаг 3
Укажите свои контактные данные в форме обратной связи
Шаг 5
Ожидайте звонка от менеджера для оформления покупки

Похожие товары

КВм
Котлы КВм
Цена от 0 руб.
Отопительные котлы
Водогрейный котел КВм-7.0 на ДВО используется для нагрева жидкости до 115 °С, применяемой в системах отопления и горячего водоснабжения. Отопительные приборы КВм-7.0 способны прогревать помещения площадью до 70000 м². Твердотопливный котел оснащается механической топкой на древесных отходах со шнековой подачей. Дополнительно к агрегату приобретаются сопутствующие товары: вентиляторы, дымососы, циклоны, дымовые трубы, бункер топки и другое котельное оборудование.
Отопительные котлы
Водогрейный котел КВм-6.3 на ДВО используется для нагрева жидкости до 115 °С, применяемой в системах отопления и горячего водоснабжения. Отопительные приборы КВм-6.3 способны прогревать помещения площадью до 63000 м². Твердотопливный котел оснащается механической топкой на древесных отходах со шнековой подачей. Дополнительно к агрегату приобретаются сопутствующие товары: вентиляторы, дымососы, циклоны, дымовые трубы, бункер топки и другое котельное оборудование.
Вы смотрели эти товары
Отопительные котлы
Котел водогрейный КВм-5.4 на угле с топкой ТЛЗМ используется для производства тепловой энергии, за счет нагрева воды до 115 °С. Может функционировать как самостоятельной агрегат или работать в связке с другими котлами в модульных и стационарных котельных. Может использоваться в системах централизованного отопления и горячего водоснабжения в объектах промышленности, ЖКХ и других. Отапливаемая площадь 54000 м².
Комплектующие и запчасти
Затвор чугунный Ду 80 Ру 16 – задвижка, отлитая из чугуна. Она регулирует рабочий поток в трубах.
Комплектующие и запчасти
Затвор чугунный Ду 100 Ру 16 – задвижка, отлитая из чугуна. Она регулирует рабочий поток в трубах.